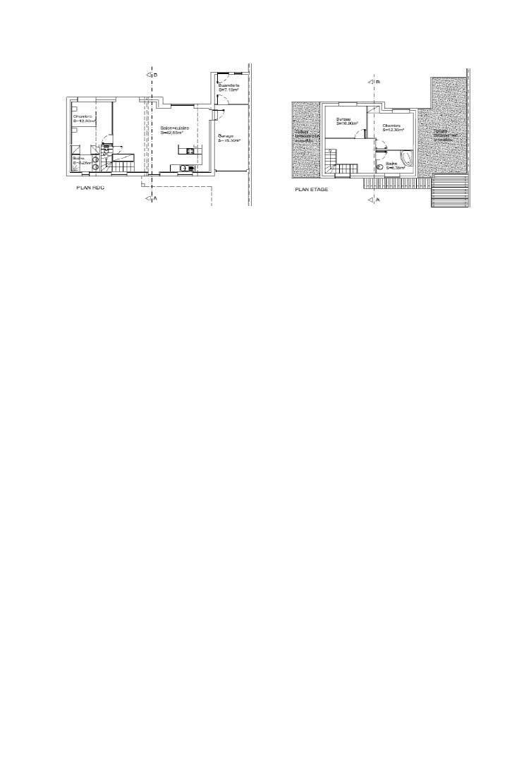
Echirolles – 38 Isère

  • Date de réalisation : 2018
  • Surface : 100
  • Région : Rhône-Alpes
  • Département : Isère
  • Ville : 38130 Echirolles

Réalisation d’un calcul BBIO pour la construction d’une maison individuelle d’environ 100m², situé à Echirolles dans le département de l’Isère.

 

 

 

Nos clients témoignent

Horaires d'ouverture

Du lundi au jeudi de 8h à 12h et de 13h30 à 17h
le vendredi de 8h à 12h

Tél : 04 79 64 08 65

Dernières Actus

Ils nous font confiance