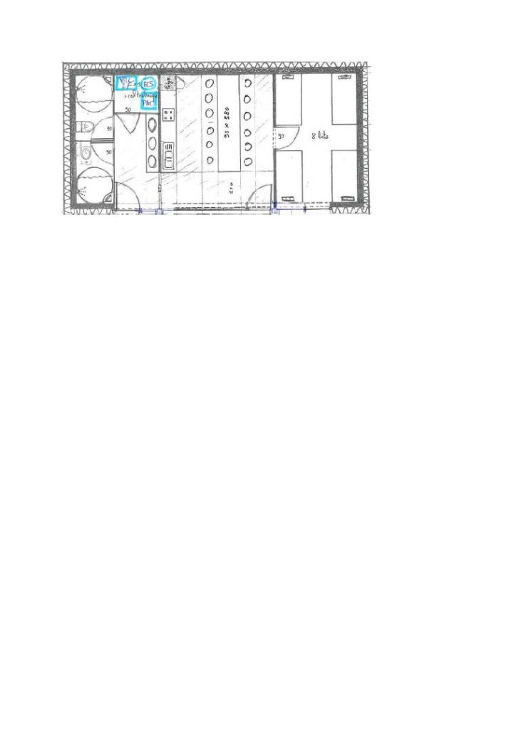
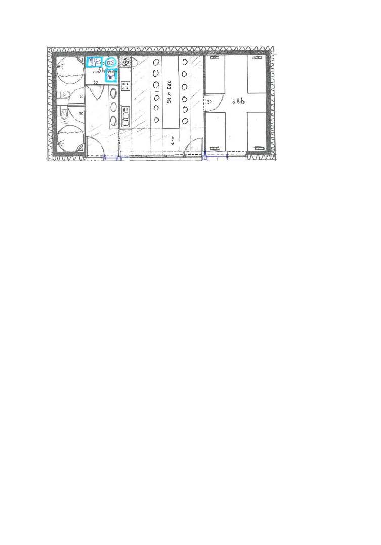
Baugy – 71 Saône-et-Loire

  • Date de réalisation : 2018
  • Surface : 55 m²
  • Région : BOURGOGNE
  • Département : Saône et Loire
  • Ville : 71110 BAUGY

Etude complète RT 2012 pour la construction d’une maison individuelle d’environ 54m².

 

Nos clients témoignent

Horaires d'ouverture

Du lundi au jeudi de 8h à 12h et de 13h30 à 17h
le vendredi de 8h à 12h

Tél : 04 79 64 08 65

Dernières Actus

Ils nous font confiance